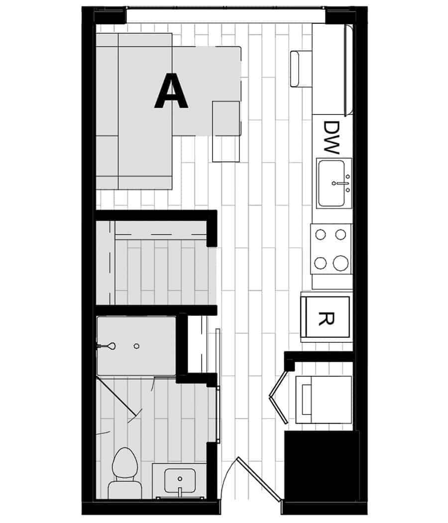
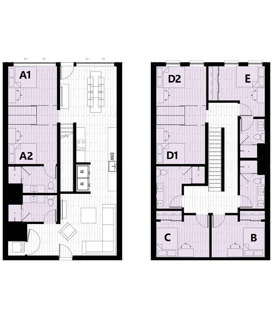
Hub On Campus Gainesville 3Rd Ave Gainesville | Student Accommodation in Gainesville - Admistay